Hardware Resources
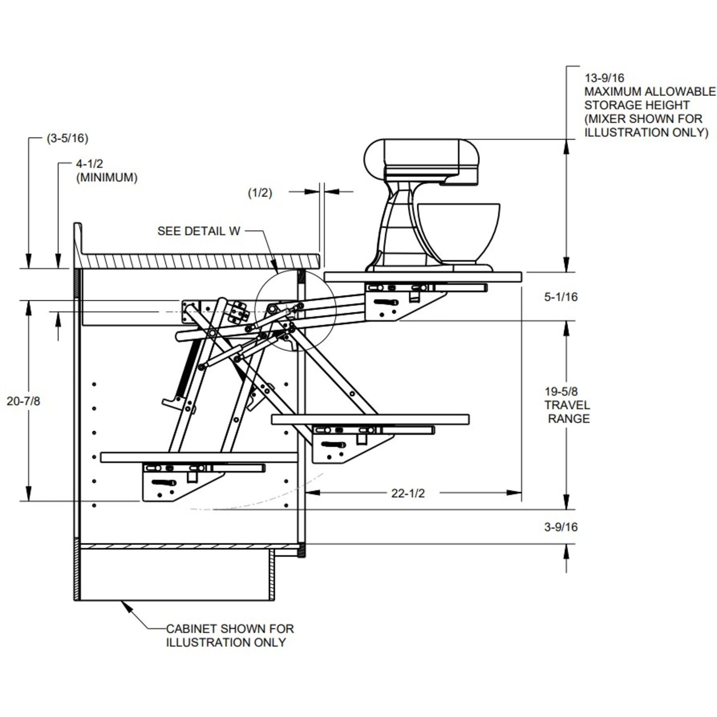
Mixer Shelf (Soft-close Appliance Lift) for B18 (Shipped Separately)
Mixer Shelf (Soft-close Appliance Lift) for B18 (Shipped Separately)
Couldn't load pickup availability
Easily bring heavy appliances to working height and tuck them away when not in use. Designed for heavier countertop appliances such as stand mixers, air fryers, and juicers, this mechanical shelf system keeps countertops clutter-free with dedicated storage space and keeps appliances accessible when needed. Lift mechanism attaches to the interior of the cabinet and includes a solid wood birch shelf for 15" cabinet openings. Soft-close dampers ensure slow and smooth closure into cabinet. Lift locks into place when fully extended. Three spring settings for up to 45 lb. weight rating. Compatible with face frame or frameless cabinetry. Installation and shelf attachment screws are included.
• Single door cabinetry is pre-hung hinge R by default. Customer to switch hinge orientation with touch up kit at jobsite.
• If prepped for glass, Wall Cabinets will come with frosted glass inserts and natural birch melamine interior.
** Our Cabinetry IS NOT imported from China **
How to Read a Cabinet SKU
How to Read a Cabinet SKU
How to read a cabinet SKU:
(Type/Width/Height/Depth)
Example: B24
B = Base Cabinet
24 = 24" Wide
Example: W3024
W = Wall Cabinet
30 = 30" Wide
24 = 24" Tall
Example: P189024
P = Pantry
18 = 18" Wide
90 = 90" Tall
24 = 24" Deep
Base Cabinets are 34.5" tall (includes 4.5" toe space), 24" deep.
Wall Cabinets are 12" deep.
Vanity Cabinets are 34.5" tall, 21" deep.
Cabinet Construction
Cabinet Construction
All of our cabinetry is all plywood construction with solid wood dovetail drawer boxes. Stained doors are solid Birch. Painted doors are a Paint Grade Wood/HDF (dramatically harder than typical wood with a density of 900kg/m3) and that has reduced warped door and joint line warranty claims by nearly 98%. All doors will need to be adjusted after install and periodically throughout the year due to humidity and temperature changes.
**No MDF is used in our cabinetry**
Cabinet Assembly
Cabinet Assembly
Selecting Yes to the Factory Built option above will extend your lead time but cabinetry will be ready to install at time of pickup.
If you select No to the Factory Built option, cabinetry will be on a very short lead time however cabinetry will need to be assembled.
Cabinet assembly requires advanced woodworking ability, as well as multiple air tools, including an air stapler. Click Here for assembly instructions.
Delivery Options
Delivery Options
Local delivery is available in Colorado as a selection during checkout for $300 - $600 depending on the distance from Commerce City (75 mile maximum).
LTL freight is available on orders outside of that range and all cabinetry can be shipped nationwide. Email us for more information!
CARB2 Compliant
CARB2 Compliant
All of our cabinetry meets and exceeds USA CARB2 Compliance standards.
Lifetime Warranty
Lifetime Warranty
All cabinetry is covered by a limited lifetime warranty on quality, workmanship, and hardware, i.e. paint defects, warped doors, failing soft close drawer glides and soft close door hinges.
Return Policy
Return Policy
No returns/refunds/exchanges are available on factory built cabinetry. These issues are rare, especially if you triple check your measurements before ordering. Working with our designer can help!
Unassembled cabinetry may be exchanged for a 25% restocking fee, however it may not be returned.
Share





Door Samples
-
Highland Grey Shaker Sample (2 15/16")
Regular price $2.00 USDRegular price -
Highland White Shaker Sample (2 15/16")
Regular price $2.00 USDRegular price -
Highland Modern Slate Sample (2 15/16")
Regular price $2.00 USDRegular price -
Highland Signature Blue Sample (2 15/16")
Regular price $2.00 USDRegular price